L’IMPORTANZA DEL SOLARE TERMICO
Il tema delle rinnovabili è di grandissima attualità.
L’Unione Europea e, successivamente, tutti i paesi membri hanno preso impegni significativi per raggiungere la neutralità climatica entro il 2050, neutralità intesa come impatto climatico zero.
In quest’ottica va incentivato l’utilizzo di energia prodotta da fonti rinnovabili favorendo l’installazione di impianti sia in ambito domestico che industriale.
Obiettivi chiave dell’ Unione Europea per il 2030
- Riduzione almeno al 40% delle emissioni di gas a effetto serra rispetto ai livelli del 1990.
- Quota almeno del 32% di energia rinnovabile.
- Miglioramento minimo del 32,5% dell’efficienza energetica.
I pannelli solari termici sono una tecnologia che permette di ricavare energia pulita per produrre acqua calda per l’integrazione di tutti i processi industriali che utilizzano l’energia termica, sfruttando l’energia solare, gratuita e rinnovabile.
Un impianto solare termico permette di trasformare direttamente l’energia solare in energia termica, senza alcuna emissione inquinante.
Perché decidere di installare un impianto solare termico:
- L’energia solare è il mezzo più naturale e immediato.
- L’energia solare è una fonte inesauribile e gratuita di energia diffusa e accessibile a tutti.
- Genera quindi risparmio economico diminuendo le emissioni inquinanti.
- Eleva la classe energetica degli edifici aumentando conseguentemente il valore dell’immobile.
I VANTAGGI DEL SOLARE TERMICO
Diminuire la dipendenza dall’energia proveniente da fonti fossili significa ridurre il consumo di risorse non rinnovabili e le emissioni di CO2.
L’installazione di un impianto solare termico aumenta il valore immobiliare dell’edificio, incide sul calcolo della sua classe energetica che va obbligatoriamente indicata nelle compravendite e negli affitti immobiliari.
L’installazione di un impianto solare termico rappresenta un investimento particolarmente interessante anche per gli incentivi e sgravi fiscali attualmente riconosciuti.
L’ENERGIA SOLARE A NOSTRA DISPOSIZIONE
Lo sfruttamento dell’energia solare è principalmente correlato alla disponibilità della radiazione solare incidente al suolo nella località presa in considerazione.
RADIAZIONE SOLARE = RADIAZIONE DIRETTA + RADIAZIONE DIFFUSA

La disponibilità di irraggiamento solare su una superficie dipende inoltre da caratteristiche geografiche ed ambientali.
A causa dell’inclinazione dell’asse terrestre la radiazione solare sulla superficie della Terra varia con la latitudine. Aumentando la latitudine diminuisce l’angolo di incidenza dei raggi solari e quindi l’energia sfruttabile.
Il movimento di rivoluzione della Terra intorno al sole determina la stagionalità annuale. Il movimento di rotazione della terra su se stessa determina il movimento apparente del sole che ogni giorno descrive degli «archi» che partono da est e terminano a ovest.

INSTALLAZIONI NEL NORD EUROPA: > 60 %
INSTALLAZIONI IN ITALIA: 8 %
IRRAGGIAMENTO MEDIO NEL NORD EUROPA: 1000 kWh/m2
IRRAGGIAMENTO MEDIO NEL SUD ITALIA: 1600/1700 kWH/m2

FUNZIONAMENTO DEI PANNELLI SOLARI
Il funzionamento dei pannelli solari si basa sulla conversione dell’energia del sole in calore. L’impianto solare termico è generalmente costituito da alcuni elementi principali, che sono un collettore e un bollitore per l’accumulo dell’energia.
I pannelli catturano le radiazioni solari, intrappolando l’energia sotto forma di calore mediante l’assorbitore che, a sua volta lo trasferisce al fluido termovettore che scorre nelle tubazioni del pannello. Nell’accumulo, invece, viene stoccata l’acqua da riscaldare.
La maggior parte dei collettori solari si differenziano in collettori solari piani e collettori solari a tubi sottovuoto con o senza riflettore.
PROGETTAZIONE DI UN IMPIANTO
L’elemento più importante per il dimensionamento è la definizione del fabbisogno di acqua calda, in riferimento al quale si determina la dimensione dell’impianto solare, cioè la superficie dei collettori e il volume del serbatoio.
I passi successivi sono costituiti dalla definizione della portata e del diametro delle tubature nel circuito del collettore, dalla scelta della pompa di circolazione e dal dimensionamento del vaso di espansione e della valvola di sicurezza.
DIMENSIONAMENTO IMPIANTO
- Irraggiamento medio bella località dell’installazione
- Integrazione con generatore tradizionale
- Fabbisogno termico
- Superficie necessaria di collettori
- Grado di copertura solare
- Schema impiantistico
- Analisi dei costi
DIMENSIONAMENTO SUPERFICIE COLLETTORI
- Per una situazione con orientamento ideale (sud, inclinazione a 30°/35°)
- Orientamenti diversi da quello ideale riducono le prestazioni. Nella maggior parte dei casi questo può essere compensato da un minimo aumento della superficie dei collettori.

INSTALLAZIONE
INCLINAZIONE: l’angolo che si forma tra il piano orizzontale e la proiezione del pannello. La scelta del valore dell’angolo è legata al principale utilizzo che se ne intende fare.

ORIENTAMENTO: indica la deviazione del piano del pannello solare dalla direzione cardinale Sud.

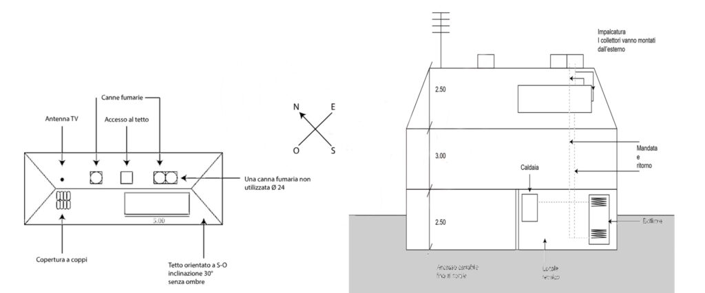
RILIEVO
E’ sempre di grande aiuto avere il rilievo, cioè un disegno che riporti le dimensioni essenziali e caratteristiche del manufatto.

Collettori Solari TER
Collettore solare a tubi sottovuoto ad elevate prestazioni tecnologicamente raffinato e sofisticato, dotato di un riflettore concentratore a parabole composte studiato specificamente per questo prodotto.
Ha tra le più alte rese energetiche annue tra i collettori solari per produzione di acqua calda.
Dalle caratteristiche estetiche uniche, è dotato di una doppia testata con lo scopo aggiuntivo di conferire al collettore TER una robustezza superiore ai modelli di questa categoria.




Vantaggi
- Elevata efficienza anche nei mesi invernali
- La più elevata resa energetica annua certificata di un collettore solare termico
- Produzione totalmente Made in Italy
- Adatto per impianti per processi industriali, Solar District Heating
- Massimizzazione della resa del campo solare
- Facile installazione e collegamento idraulico con tenuta meccanica assicurata nel tempo
- Sostituzione del tubo di vetro sottovuoto semplice e veloce senza modifiche e fermi d’impianto
- Componenti di elevata qualità
- Kit di staffaggio solido e sicuro
- Certificato Solar Keymark e ISO EN 9806
- Conforme alle normative CE
- Conforme all’incentivo conto termico
- Conforme alle detrazioni fiscali



Comparazione efficienza dei vari collettori


CERTIFICAZIONE SOLAR KEYMARK
Abbiamo sviluppato un efficiente gestione della qualità e tutti i processi produttivi e aziendali sono regolati da un Sistema di Gestione della Qualità certificato e conforme ai requisiti della normativa UNI EN ISO 9001:2015
Inoltre tutti i collettori solari sono certificati secondo le norme internazionali EN 12975:2006-1,2 e sono prodotti e testati secondo gli standard previsti dalla normativa EN ISO 9806:2013, essendo tutti dotati della certificazione Solar Keymark.

SISTEMA SOLARE A CIRCOLAZIONE FORZATA
I sistemi solari termici a circolazione forzata prevedono l’installazione di una pompa di circolazione per il movimento del fluido termovettore.
Tra i principali vantaggi c’è la possibilità di installare il serbatoio in un vano tecnico proteggendolo, riducendo le dispersioni termiche.
Questa tipologia di impianti è anche più versatile e viene usata per un ventaglio di applicazioni maggiore.
CLIENTI TARGET TER (per aree >200/300 M2)
- Grandi alberghi >120 camere
- SPA – centri benessere – piscine
- Ospedali – case di cura
- Industrie alimentari, plastiche, chimiche, farmaceutiche
- Lavanderie industriali – concerie

